Creating Privacy
Reflect your personality while you make a basic bedroom more
When we first started sharing our extra spaces, I was able to remodel several into suites. But some rooms couldn’t go that far.
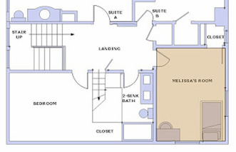
For example, Melissa had a smaller bedroom in our home, 11 x 15 feet. That’s a fairly nice size. Still it's just a basic rectangle-shaped bedroom with windows at the outer edge. So I worked with her to make it into something more.
It has lovely northwestern light. As you see below, she moved her bed to the outer corner of the room so it was framed by the two large 4-foot-wide windows and was farthest from the bathroom.
She liked the outer space for her bed and desk because it gave her a feeling that her own areas were removed from view. So you see right off, privacy was important to her.
When you walk into a room you own or rent, where do you first naturally see your things placed? Ask why? (And then “Why?” again.) Get into why it feels right to you - Is it the light, the view, the sense of being away from or close to another space?
Knowing Melissa, I suggested she place her desk in the corner where it was also flooded diagonally by natural light, which being northern light is the best.
In the photo below and in the plan above, you see that the wall her door opened onto also leads to her closet and its door. That means the major furniture pieces tend to be placed on the window side, making the room feel overly-weighted on the far end. But as is, if her door was ajar, you could see directly into her room from anywhere on the landing. So, most people using this room will do exactly that furniture layout. There's no sense of privacy if she wants her door open, which in our house was an invitation to say hello.
So what to do to enhance the room?
Essentially, you can add privacy by creating an entry into the room. There are several ways to do this, and you get a bonus when you do - more activity niches to use!
You can create these zoned spaces as easy DIY additions:
The simplest, most flexible fix can be done by creating an entry alcove with something vertical that acts as a visual divider. Be as creative as fits your soul! I'll work the principle here with a shelf-unit, but you could use ceiling-hung fabric, an art panel, a textural wood piece, or anything that appeals. I like shelves or cabinets because they offer additional storage.
So, here's what happens if you use one 6-foot shelf (deep orange in plan):
Placing just one tall shelf facing the entrance just inches beyond the entry door's full open swing creates a new path of entry that catches the eye straight ahead, then requires a turn before they see into your room. (Also notice that since this was earthquake country, I anchored the end of the shelf to the wall with a piano hinge. This secures the shelf, but allows it to be easily rotated against the wall for moving larger furnishings in and out.)
Interestingly enough, an open-backed shelf or a divider works just as well as one with a back; either draws the eye as someone approaches, so the onlooker's vision is foreshortened. It depends on how private a feel you need, and how much light you'd like passing through this "wall" you've created.
Now decide if you want the stuff on the shelves facing the entry as decor to intrigue your visitor, or facing the space you've created behind the unit. (You can hang a picture on the shelf back for visitors to see as they pass or enter.) Maybe find or make a unit that has some open and closed panels so there’s some of each?
Plus, you have this new niche behind the shelf. There's enough space for a small upholstered chair where you might read by all the natural light of that large window. Maybe with a tiny ottoman. You also have balanced the room's furnishing better too.
People tend to walk into the room straight towards the desk unless they plan to sit on the bed. If you know me well, you know I look for wasted corners I can put to use everywhere. Notice that right now there's "wasted square footage" that could be put to use along that left wall. We placed Melissa's hot water kettle and tea set-up on a small, low carved table just beside her, within easy reach, with her favorite books on a series of wall-mounted shelves above. It created a vertical element that was special to her, and it felt quite delicate and intimate. She liked her space quite spare, and only wanted a picture on the wall. So for her, that space is where she knelt to prepare tea, or stood to scan her treasured books.
Next, if creating a sitting niche right by your closet isn't appealing, you can move the shelf or divider further back as you see in this second iteration, to allow the space for a second shelf perpendicular to the entry door. See what this does:
These units should be just high enough to cover what you want covered. You do not need to go high on both, and you want light moving easy around these walls you create. So you might make one 6-foot tall, while another might be 3 or 4 ft tall.
You now have a protected entry. Hang some pictures along the left entry wall? Put a changing display on the shelf? A photo montage or collection you own? You are drawing your visitor deeper into the room before they turn to see where you are. While doing so, you get to choose what they see along the way. You are truly designing how your space is taken in. There's also a nice feeling of entry where they’re waiting to be invited in.
In addition, you have created a large alcove behind the perpendicular shelf. If it wasn't against the bathroom wall, you could put your bed against that low shelf using it as a headboard or make it a seating nook with a comfy chair, or a creative task area. Music listening/making corner and collection? Up to you.
If you draw a plan of your room on graph paper to scale, you can play with the width of these two pieces to find more alcove variations. The shelves or dividers are creating circulation paths into your room. Directing these paths lets you add an activity area, and their heights and transparency lets you choose how much visibility you want that activity to have.
If, for example, you're comfortable letting someone see over the perpendicular unit, keep it low. Try shortening it to half the width that I show above. Doing so moves your "entry" more into the room's center allowing you to push the larger unit facing the door closer towards the door. That allows you to fit a hamper right next to the closet, hidden from view. As long as you leave 36 inches as your entry opening, it should flow nicely. Play.
And what you choose to use and put on your shelving “walls” becomes another expression of you. Be audacious as is your bent….Nice!









Yes, thanks Samuel. The way I see good shared sheltering is "Privacy Realms around a Commons," plus Affinity Spaces as the community desires. I work to use all wasted space vertically and horizontally and making mini-zones of use. I think what is most lovely is that it folds in the character of the person using the space.
Thank you for sharing! I appreciate how detailed and considerate your layout thinking can be for small spaces. Patterns nested in patterns!